

| 階 | 号室 | 面積 | 入居可能日 | 賃料 | 平面図 | その他 |
| 満 室 |
※賃料(月額)・単位:円(税込)
[ 2025年7月2日現在 ]

| 住所 | 札幌市中央区南4条西10丁目1003番4 | ||
| 最寄駅 | 地下鉄東西線「西11丁目駅」 徒歩9分 | ||
| 築年 | 2011年3月 | 構造・規模 | 鉄筋コンクリート造 地上10階建 |
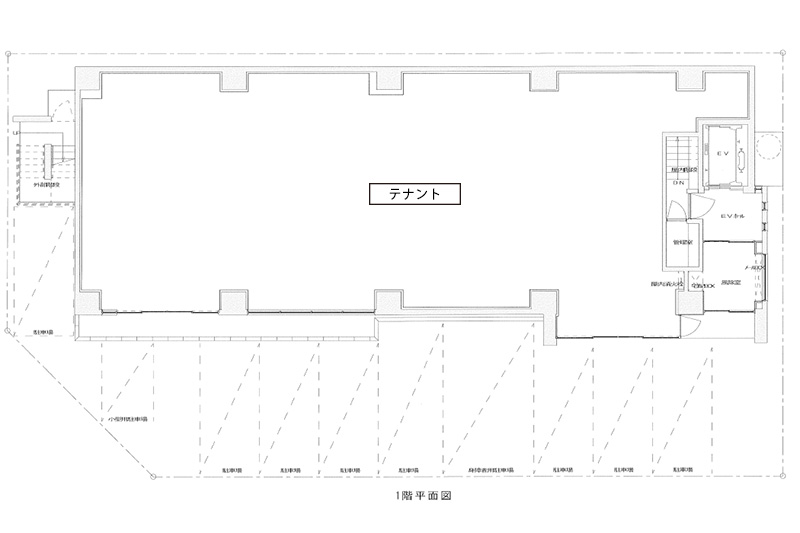
| 専有面積 | 61.77㎡~228.10㎡ | 駐車場 | 有り |



![]() |
![]() |
![]() |
![]() |
| 札幌市消防局中央消防署 (91m/徒歩2分) |
セイコーマート おかだ店 (130m/徒歩2分) |
札幌市中央区役所 (190m/徒歩3分) |
北洋銀行 札幌西支店 (450m/徒歩7分) |
![]() |
|||
| 北海道銀行 南1条支店 (500m/徒歩7分) |

| 2F | ㈱ルミネSFD |
| 1F | FITNESS24 南4石山通店 |


